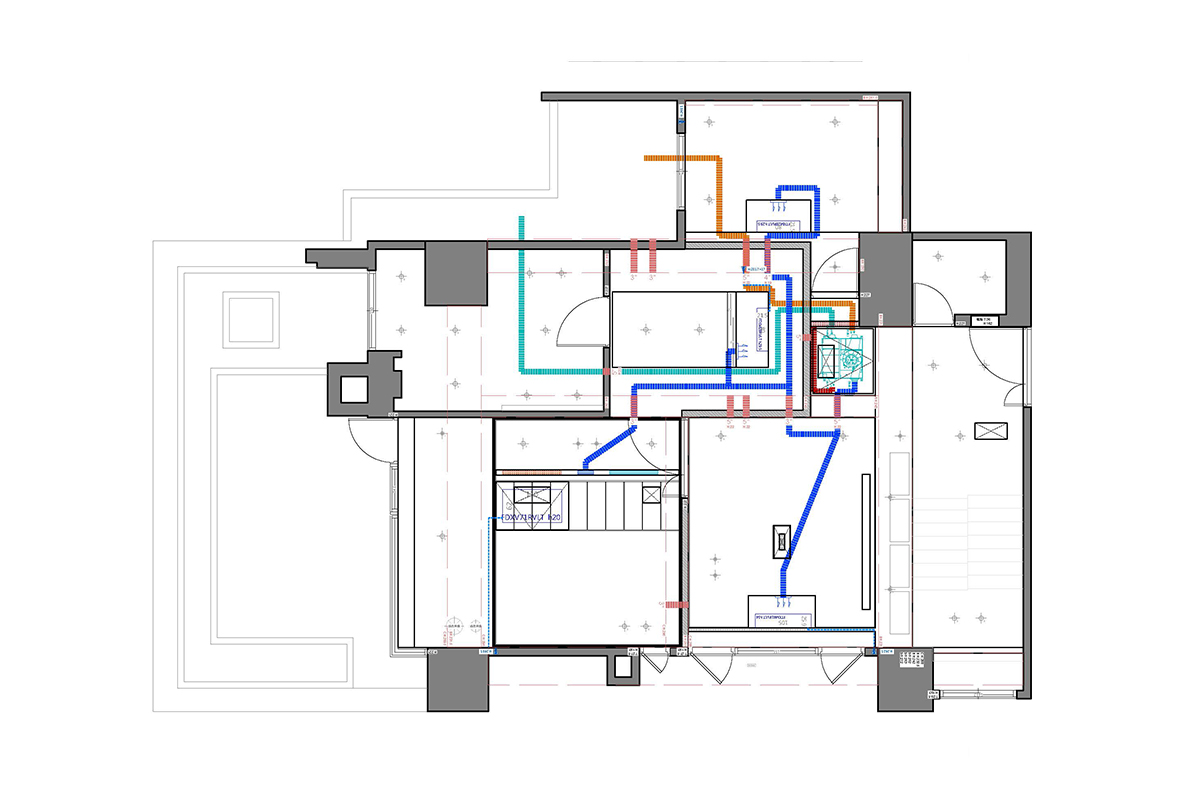
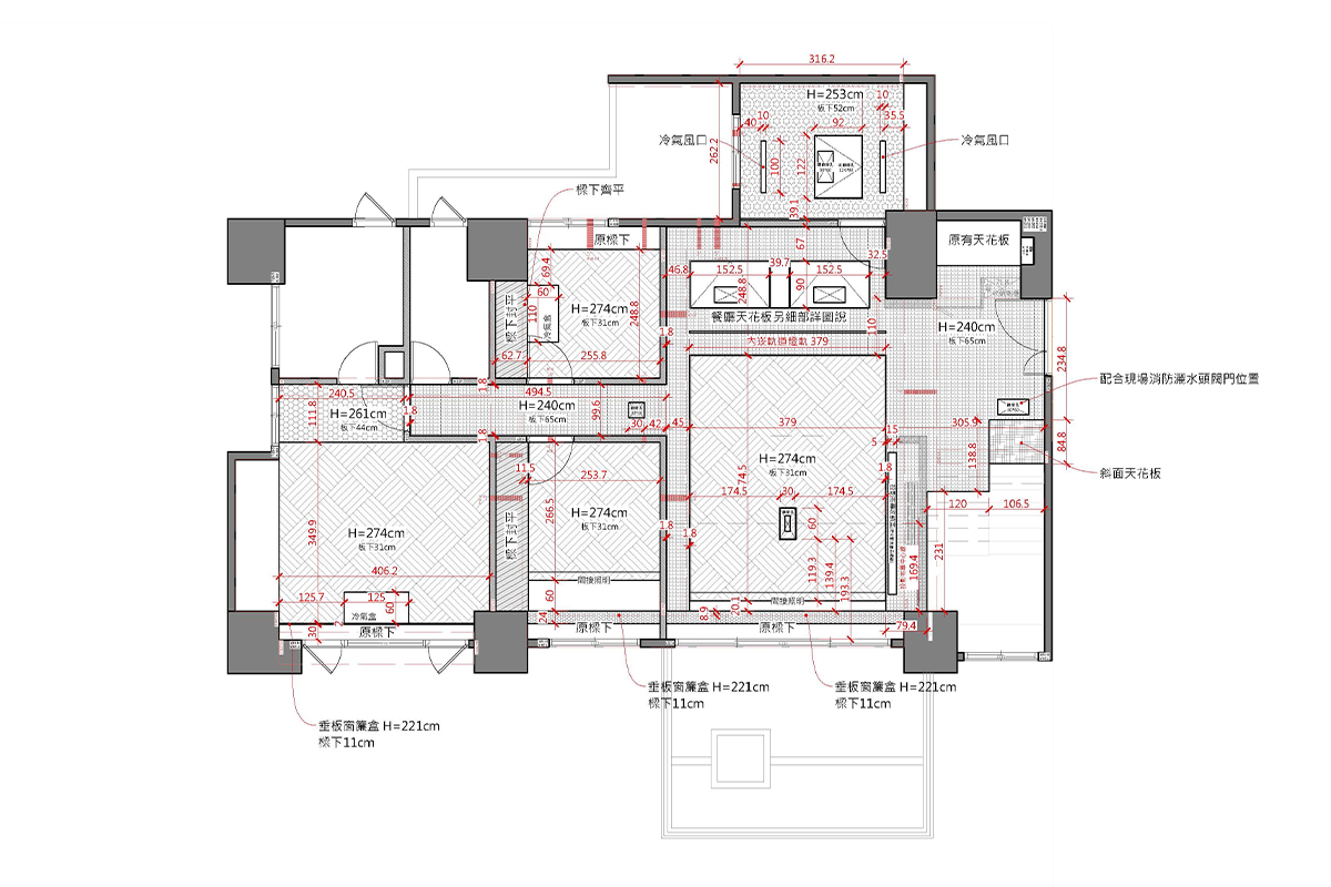
完工交屋時,屋內空間呈現出樸實的空曠感,沒有多餘的造型與裝飾,甚至沒有家具擺設。但幾近絕對平整的天花板,配上「二補二底一面」工序施作的乳膠漆塗裝,使整個空間呈現沉穩、洗鍊、絕不苟同的精神,在日照充足的時段甚至能看見大面天花的完整反光。
W先生對此成果表達了高度的滿意。他理解,這份看似空蕩的空間,實則蘊含著工程品質的承諾、長遠的居住價值以及大量隱形成本的節省。
本案專注於構築一個能真實反映生活本質、經得起時間考驗的居所。我們的價值,體現於規劃階段對每一個細節的務實考量,以及基於工藝原理對未來使用性的周全預備。